Ray White Mangere Bridge
20B Coronation Road
Mangere Bridge
Auckland 2022
Listing #:
MGR33773
Listed:
5 hours ago

Auction (unless sold prior)

Wed 25th Mar 9:00am

#THEDAY First Time on the Market in 50 Years

54 Cobham Crescent, Otara, Manukau City
Residential House
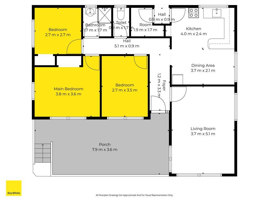
bedroom
3 Bedrooms
bathroom
1 Bathroom
toilet
1 Toilet
carparkoffstreet
2 Offstreet Car Parks
floorarea
95m2 Floor Area
landarea
718m2 Land Area
About this property
This much-loved family home is on the market for the first time in nearly 50 years. Filled with decades of memories, it offers a rare opportunity to secure a solid property in a well-established community.

Featuring three bedrooms and one central bathroom, the home provides a practical layout ideal for families, first-home buyers, or savvy investors. The living spaces are warm and inviting, with plenty of potential to refresh, renovate, or completely reimagine to suit your vision.

Whether you're looking for a rewarding do-up project or your next investment opportunity, this property is brimming with possibility.

Opportunities like this don't come often - secure your slice of Otara and unlock the potential this cherished home has to offer.

Join us at the open homes or contact us today to arrange a private viewing.

**CONJUNCTIONALS WELCOME FROM ALL AGENCIES**

Auction In Rooms Ray White Manukau from 9:00am Wednesday, 25 March 2026 (unless sold prior)

Disclaimer - This property is being sold by auction or without a price and therefore a price guide can not be provided. The website may have filtered the property into a price bracket for website functionality purposes. All prospective purchasers shall complete their own due diligence, seek legal and expert advice, and satisfy themselves with respect to information supplied during the marketing of this property, including but not limited to: the floor and land sizes, boundary lines, underground services, along with any scheme plans or consents.

Sat 7th Mar 1:00pm ~ 1:30pm

Sat 7th Mar 4:00pm ~ 4:30pm

Sun 8th Mar 1:00pm ~ 1:30pm

Wed 11th Mar 6:00pm ~ 6:30pm

Sat 14th Mar 1:00pm ~ 1:30pm

Sat 14th Mar 4:00pm ~ 4:30pm

Sun 15th Mar 1:00pm ~ 1:30pm

Wed 18th Mar 6:00pm ~ 6:30pm

Sat 21st Mar 1:00pm ~ 1:30pm

Sat 21st Mar 4:00pm ~ 4:30pm

Sun 22nd Mar 1:00pm ~ 1:30pm

Tue 24th Mar 1:00pm ~ 1:30pm

Check out whether you can get fibre internet
Meet your new neighbours on Neighbourly