Ray White Mangere Bridge
20B Coronation Road
Mangere Bridge
Auckland 2022
Listing #:
MGR33740
Listed:
18 hours ago

Auction (unless sold prior)

Wed 25th Mar 11:00am

#GAMEDAY Green Cash Out on Greenhaven! MUST GO!

5A Greenhaven Avenue, Opaheke, Papakura
Residential House
bedroom
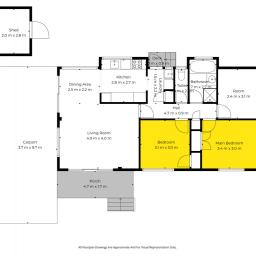
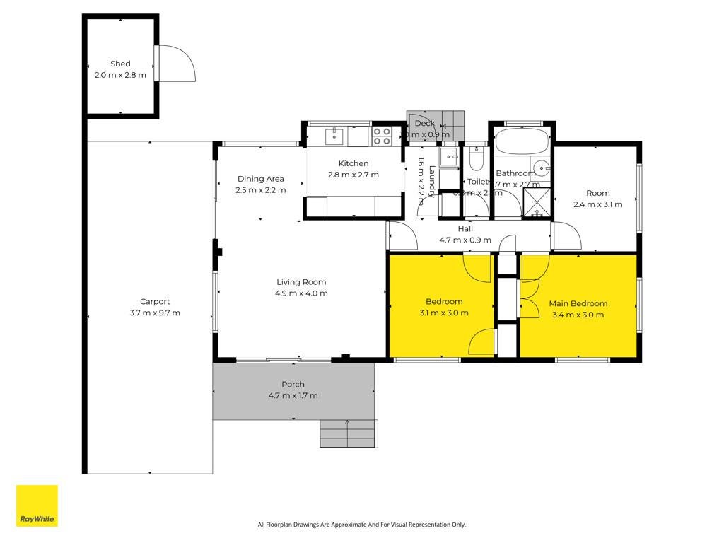
3 Bedrooms
bathroom
1 Bathroom
carparkcovered
2 Covered Car Parks
floorarea
82m2 Floor Area
landarea
438m2 Land Area
About this property
The owner has made a clear decision to move on, creating an exciting opportunity to secure a solid first home or investment in the highly sought-after Opaheke area. The owner is cashing out and needs it sold YESTERDAY!

This standalone property is presented in neat, tidy condition and ready to enjoy from day one, while still offering scope to add a little love and your own touch over time. Whether you're stepping onto the property ladder or looking to enhance and add value, there's genuine potential here to make it your own.

Currently tenanted at $700 per week, the home also provides great rental income for investors seeking a straightforward, income-producing asset over time. With strong fundamentals, a desirable location, and motivated instructions in place, this is one you'll want to act on fast!

Property Snapshot:
• FREEHOLD TITLE
• Healthy homes certified
• Open plan living and dining
• Private driveway away from main road
• 8 Minute drive to Northern & Southern Motorways
• Close proximity to local amenities & public transport
• School Zoning: Opaheke School, Papakura Intermediate, ACG Strathallan

Conditional buyers also welcome.

**CONJUNCTIONALS WELCOME FROM ALL AGENCIES**

Auction In Rooms Ray White Manukau from 9:00am Wednesday, 25 March 2026 (unless sold prior)

Disclaimer - This property is being sold by auction or without a price and therefore a price guide can not be provided. The website may have filtered the property into a price bracket for website functionality purposes. All prospective purchasers shall complete their own due diligence, seek legal and expert advice, and satisfy themselves with respect to information supplied during the marketing of this property, including but not limited to: the floor and land sizes, boundary lines, underground services, along with any scheme plans or consents.

Sat 7th Mar 11:00am ~ 11:30am

Sun 8th Mar 11:00am ~ 11:30am

Sat 14th Mar 11:00am ~ 11:30am

Sun 15th Mar 11:00am ~ 11:30am

Sat 21st Mar 11:00am ~ 11:30am

Sun 22nd Mar 11:00am ~ 11:30am

Check out whether you can get fibre internet
Meet your new neighbours on Neighbourly