Ray White Beach Haven

Ray White provides a broad range of real estate services from selling your property to property management. Visit our website to see over 12,000 properties on display.

We are a family owned business. When you choose Ray White, you are choosing over 100 years of experience and a name you can trust. We guarantee it!

Contact us to find out how Ray White can help you when it comes to property.

Ray White Beach Haven
Carpenter Realty Ltd Licensed (REAA 2008)

Real Estate Agents

Ray White Beach Haven
Ray White Beach Haven
350 Rangatira Road
Beach Haven
Auckland 0626
Listing #:
ORW30490
Listed:
1 day ago

Auction

Thu 26th Mar 4:00pm

The One In Totara Views

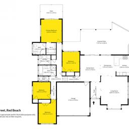
32 Saltwood Street, Red Beach, Rodney
Residential House
bedroom
4 Bedrooms
bathroom
2 Bathrooms
toilet
2 Toilets
carparkgarage
2 Car Garages
carparkoffstreet
2 Offstreet Car Parks
floorarea
209m2 Floor Area
landarea
619m2 Land Area
About this property
Positioned on a sunny corner site in sought after Totara Views, this beautifully presented single level brick and tile home offers the ease of low maintenance living combined with a thoughtful, family friendly layout. Solid in construction and generous in proportion, it provides excellent separation between bedrooms and living spaces, seamless indoor outdoor flow, and a back garden you will love to relax and unwind in.

Here are some of the top features awaiting its next lucky owners:

- Split level brick and tile construction on a sunny corner site, offering durability, peace of mind and easy care living
- Four well proportioned bedrooms, including a private master suite complete with a huge walk in wardrobe and ensuite
- Clever separation between the bedroom wing and the central living hub, ideal for busy families who value both connection and quiet retreat
- Spacious kitchen with gas cooking and breakfast bar, flowing to a sun drenched dining and family area, plus a separate formal lounge or media room for added flexibility
- Family bathroom with inlaid bathtub plus a separate wc for everyday convenience
- Covered rear patio overlooking easy care, fully fenced subtropical gardens, perfect for kids and pets to play safely

Living here means enjoying a location that truly caters to family life. Within easy strolling distance is highly regarded Kingsway School, along with the popular estuary walkway that provides a wonderful setting for morning walks and weekend adventures. You are also just minutes from the ever evolving Silverdale Shopping Centre and Millwater Shopping Centre, with motorway on ramps close by for easy commuting north or south.

With the beaches of Orewa and Red Beach only a short drive away for summer swims and winter strolls, this home offers comfort, convenience and a lifestyle that works beautifully in every season. A solid home in the sweetest of settings, ready for its next chapter. Call Tyler Broughton for more information or come along to the weekend open homes to experience it for yourself.

Sat 7th Mar 12:30pm ~ 1:00pm

Sun 8th Mar 12:30pm ~ 1:00pm

Check out whether you can get fibre internet
Meet your new neighbours on Neighbourly