Ray White Town and Lifestyle

Ray White provides a broad range of real estate services from selling your property to property management. Visit our website to see over 12,000 properties on display.

We are a family owned business. When you choose Ray White, you are choosing over 100 years of experience and a name you can trust. We guarantee it!

Contact us to find out how Ray White can help you when it comes to property.

Ray White Rolleston
Town & Lifestyle Real Estate Ltd Licensed (REAA 2008)

Real Estate Agents

Ray White Town and Lifestyle
Ray White Town and Lifestyle
Suite 10
70 Rolleston Drive
Rolleston 7614
Listing #:
LIC31241
Listed:
14 days ago

$695,000

High-Spec Investment - Finishing Soon

17b Appledore Street, Prebbleton, Selwyn
Residential House
bedroom
2 Bedrooms
bathroom
1 Bathroom
carparkgarage
1 Car Garage
floorarea
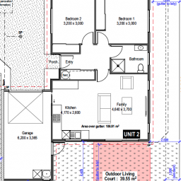
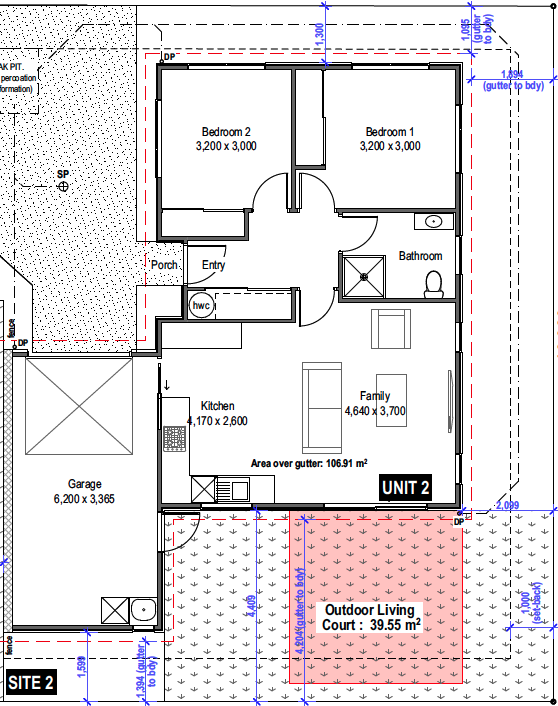
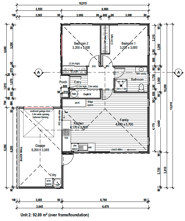
92m2 Floor Area
landarea
285m2 Land Area
About this property
PROPERTY FILES:
www.propertyfiles.co.nz...

Nearing completion, this beautifully crafted 92sqm residence offers a premium lifestyle in one of Canterbury's most sought-after townships. Whether you are looking to downsize in style, secure a high-quality investment, or take your first step onto the property ladder, this home is designed to impress.

Built by a well-respected building company and backed by a 10-year Master Build Warranty, the home boasts a sophisticated exterior palette. The construction utilizes high-end materials including Resene over Graphex plaster for a sleek finish, James Hardie weatherboard accents for timeless texture, and stone veneer detailing that adds a touch of luxury.

The heart of the home is the spacious, open-plan living and kitchen area which is perfect for entertaining or quiet nights in. The designer kitchen features sleek stone benchtops and quality appliances including a cooktop, oven, and dishwasher. For seamless indoor-outdoor flow, a sliding door opens from the living space to a private patio area that is ideal for alfresco dining.

The home offers two restful double bedrooms equipped with built-in sliding cupboards for maximum storage efficiency. The high-end bathroom further elevates the interior with elegant tiled flooring and a modern tiled shower.

Engineered for year-round comfort, the property is equipped with a powerful heat pump in the main living zone along with thermally broken windows and superior insulation throughout. Convenience is also key, with an internally accessible garage that features an insulated door.

This property is being sold as a full turn-key package, meaning every detail is handled for you. From the structural build to the full hard and soft landscaping, all you need to do is turn the key and move in.

Situated in a quiet pocket of Prebbleton, you are still within easy reach of the local lifestyle. Enjoy a quick trip to the nearby Prebbleton Domain or the community atmosphere at the Prebbleton Tavern. For those who enjoy the outdoors, the Lincoln-to-Christchurch cycleway is easily accessible, and the nearby Trent's Estate offers a beautiful local landmark to explore.

Commuting is made easy with straightforward access to the Christchurch city centre via the Southern Motorway. This allows you to enjoy the peaceful atmosphere of Prebbleton while remaining well-connected to the city for work or leisure.

For a private viewing and/or a full information pack on this listing please contact Rowan Shepherd on rowan.shepherd@raywhite.com

Check out whether you can get fibre internet
Meet your new neighbours on Neighbourly