Ray White Flat Bush

Ray White provides a broad range of real estate services from selling your property to property management. Visit our website to see over 12,000 properties on display.

We are a family owned business. When you choose Ray White, you are choosing over 100 years of experience and a name you can trust. We guarantee it!

Contact us to find out how Ray White can help you when it comes to property.

Ray White Flat Bush
Mountfort Estate Agents Ltd Licensed (REAA 2008)

Real Estate Agents

Ray White Flat Bush
Ray White Flat Bush
Unit 25
123 Ormiston Road
Flat Bush
Auckland 2016
Listing #:
DMR31862
Listed:
22 days ago

By Negotiation

Sunny, Street-Frontage Gem in Flat Bush!

2/10 Norrie Smith Avenue, Flat Bush, Manukau City
Residential House
bedroom
3 Bedrooms
bathroom
1 Bathroom
toilet
1 Toilet
carparkgarage
1 Car Garage
About this property
Welcome to 2/10 Norrie Smith Avenue!

Perfect for first-home buyers, downsizers, or investors looking for a solid opportunity in • sought-after Flat Bush.

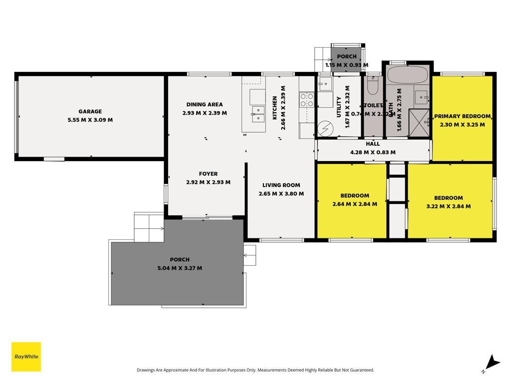
A sunny, neat, and tidy 3-4 bedroom home offering flexibility, comfort, and fantastic value in a highly sought-after location. The layout is practical and family-friendly, with living areas thoughtfully separated from the bedrooms to ensure privacy and comfort.

Location is key - enjoy the convenience of nearby local shops and quick access to the Southern Motorway, making commuting simple and daily errands effortless.

Property Highlights:

• 3 generous bedrooms plus a flexible 4th room option
• Separate lounge plus open-plan family & dining area
• Bathroom, separate toilet, and separate laundry
• Fully fenced street-front section
• Plenty of parking - no shared driveway
• Sunny deck perfect for entertaining

There's also a versatile, cosy multi-purpose space that can serve as a second living area, fourth bedroom, study zone, or kids' play area - the choice is yours!

Enjoy relaxed indoor-outdoor living with seamless access to the deck, perfect for summer gatherings or a morning coffee.

Contact us today to arrange a private viewing and secure this exceptional property!

Sat 7th Mar 12:00pm ~ 12:30pm

Sun 8th Mar 12:00pm ~ 12:30pm

Check out whether you can get fibre internet
Meet your new neighbours on Neighbourly