Ray White Remuera

Ray White provides a broad range of real estate services from selling your property to property management. Visit our website to see over 12,000 properties on display.

We are a family owned business. When you choose Ray White, you are choosing over 100 years of experience and a name you can trust. We guarantee it!

Contact us to find out how Ray White can help you when it comes to property.

Ray White Remuera
Megan Jaffe Real Estate Ltd Licensed (REAA 2008)

Real Estate Agents

Ray White Remuera
Ray White Remuera
411 Remuera Road
Remuera
Auckland 1050
Listing #:
RMU44177
Listed:
47 days ago

Asking Price $1,550,000

Architectural Integrity Meets Everyday Ease

2/278 St Heliers Bay Road, St Heliers, Auckland City
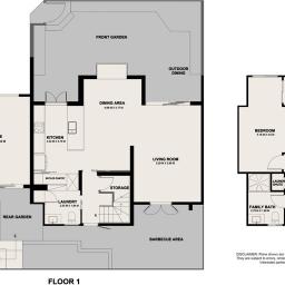
Residential House
bedroom
3 Bedrooms
bathroom
2 Bathrooms
carparkgarage
1 Car Garage
carparkoffstreet
1 Offstreet Car Park
floorarea
170m2 Floor Area
About this property
When the owner asked his architect to design something special, neither anticipated the journey that would unfold - a complete rebuild from the ground up, executed with vision and precision. The result is a striking, architecturally reimagined home that balances mid-century modern ideals with the comforts of contemporary living.

This two-level residence feels both progressive and grounded, crafted from honest materials and shaped for the way we live today. Exposed timber rafters, tongue-and-groove ceilings, and solid structural components express the warmth and craftsmanship that define its design. Light filters through double-glazed skylights and wide openings, creating a seamless connection to the outdoors and an ever-changing play of shadow and sun.

At its heart, the kitchen is a study in refinement - a beautifully detailed space with a high-spec finish and a thoughtfully appointed butler's pantry. The open living and dining areas extend naturally to landscaped terraces, inviting relaxed gatherings year-round.

Upstairs, three generous bedrooms, a luxurious en suite, and a light-filled family bathroom sit beneath a dramatic skylight landing - elegant, calm, and perfectly proportioned.

A separate sleepout or office offers flexibility for work or guests, while a larger-than-average garage and ample off-street parking enhance daily practicality.

Tucked away from the road in one of St Heliers' most desirable neighbourhoods, this home represents more than a rebuild - it's a masterclass in design integrity and timeless appeal.

Our client will entertain all offers around the asking price.
Check out whether you can get fibre internet
Meet your new neighbours on Neighbourly