Ray White Town and Lifestyle

Ray White provides a broad range of real estate services from selling your property to property management. Visit our website to see over 12,000 properties on display.

We are a family owned business. When you choose Ray White, you are choosing over 100 years of experience and a name you can trust. We guarantee it!

Contact us to find out how Ray White can help you when it comes to property.

Ray White Rolleston
Town & Lifestyle Real Estate Ltd Licensed (REAA 2008)

Real Estate Agents

Ray White Town and Lifestyle
Ray White Town and Lifestyle
Suite 10
70 Rolleston Drive
Rolleston 7614
Listing #:
RLL32562
Listed:
53 days ago

By Negotiation

Owners Purchased - Must Go!

34 Sandhurst Drive, Rolleston, Selwyn
Residential House
bedroom
3 Bedrooms
bathroom
2 Bathrooms
carparkgarage
3 Car Garages
floorarea
192m2 Floor Area
landarea
653m2 Land Area
About this property
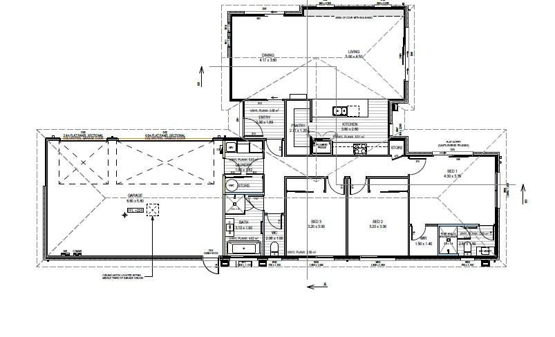
Welcome to 34 Sandhurst Drive - built in 2021 and located within walking distance to local schools, sports centers and Foster park.

Sitting on a 653m2 easy-care section, this thoughtfully designed 192m2 home with 3 car garaging delivers functional space, quality finishes, and everyday comfort - with a layout that just works.

Step through the separate entrance way into a light-filled open-plan living area. The contemporary kitchen features plenty of family sized kitchen space, quality appliances, and walk-in pantry to keep everything organised. This space flows seamlessly into an spacious back-yard - make your mark here by getting creative with a blank canvas.

The master suite offers privacy and comfort, complete with a walk-in wardrobe and ensuite. Two further double bedrooms are located down the hall, alongside family bathroom.

Heating is well taken care of with a heat pump in the main living zone, plus another in the bedroom wing.

Practical extras include an internal laundry and a sought-after triple-car garage. Outside, an extended concrete driveway provides ample off-street parking for the boat, camper, or extra vehicles.

Surrounded by other homes of value and located within walking distance to multiple schools, Foster Park and Selwyn Aquatic Centre - this property offers both privacy and convenience.

Don't miss your chance to secure this smart buy!

To view the property files, please copy and paste this link into your browser:
www.propertyfiles.co.nz...
Check out whether you can get fibre internet
Meet your new neighbours on Neighbourly