Ray White Town and Lifestyle

Ray White provides a broad range of real estate services from selling your property to property management. Visit our website to see over 12,000 properties on display.

We are a family owned business. When you choose Ray White, you are choosing over 100 years of experience and a name you can trust. We guarantee it!

Contact us to find out how Ray White can help you when it comes to property.

Ray White Rolleston
Town & Lifestyle Real Estate Ltd Licensed (REAA 2008)

Real Estate Agents

Ray White Town and Lifestyle
Ray White Town and Lifestyle
Suite 10
70 Rolleston Drive
Rolleston 7614
Listing #:
RLL32526
Listed:
88 days ago

$675,000

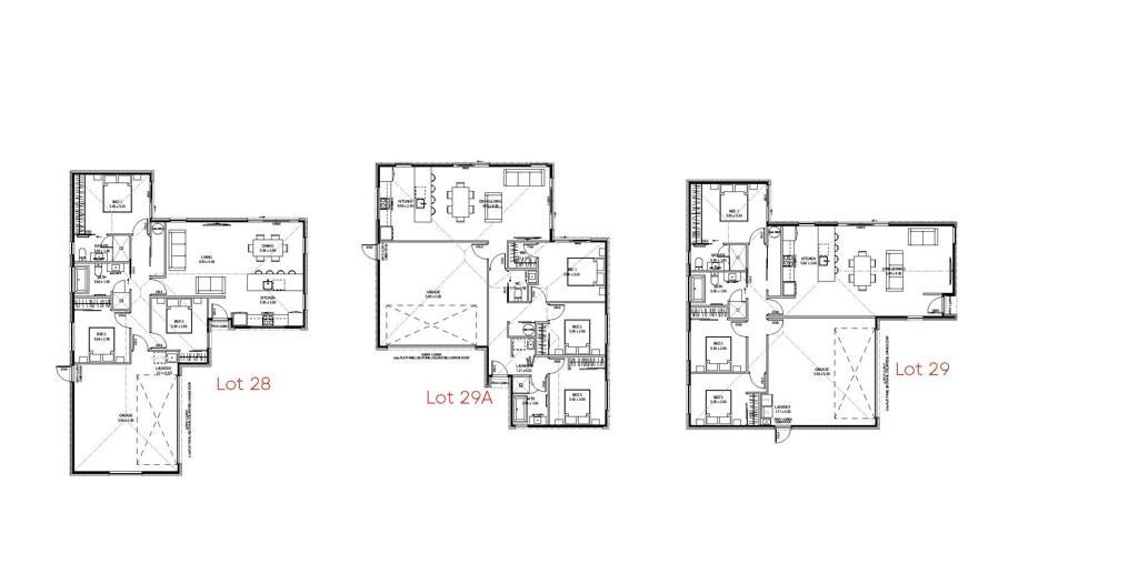
Turn-Key | Live In or Rent Out

108 Scout Street, Rolleston, Selwyn
Residential House
bedroom
3 Bedrooms
bathroom
2 Bathrooms
carparkgarage
2 Car Garages
floorarea
147m2 Floor Area
About this property
Construction will soon be underway for this stylish, brand new home!
Completion due late March to early April 2026


Architecturally designed newbuild located in the fast selling Broadfield Grange subdivision, just minutes from Rolleston town centre and a short walk to the local Primary School and park making it a great place to raise a family or commute daily to Christchurch City.

Features:
• 147m2 Floor area (approx.)
• 300m2 Land Area approx ( pending subdivision approval)
• Open plan living/dining - Seamlessly designed for everyday living and entertaining
• Slider leading out to private patio, overlooking the easy-care section
• Master with ensuite incl. oversized shower
• Main family bathroom with toilet
• Recessed laundry space in garage
• Landscaping includes driveway, patios, top soil and seeded grass
• Completing this package a double internal access garage

• For more information or to arrange a private viewing, please contact Caine Hopcroft on 0273301002 or Holly Partridge on 0277771270

• Work-ins with other agencies are welcome.

To view the property files, please copy and paste this link into your browser:
www.propertyfiles.co.nz...
Check out whether you can get fibre internet
Meet your new neighbours on Neighbourly